Document
我在听,请说话(10s)
抱歉,没听清,请再说一遍吧
智能问答
您所在位置:首页 > 住房保障 > 项目建设 > 设计方案公示

西城区教子胡同65号院2号楼(南楼)、12号楼(西楼)改建保障性租赁住房项目规划设计方案专家评审意见

信息来源:北京市住房和城乡建设委员会发布时间:2025年03月28日

  西城区教子胡同65号院2号楼(南楼)、12号楼(西楼)改建保障性租赁住房项目规划设计方案专家评审意见如下:

  一、补充关于不设置消防喷淋设施的说明。

  二、外立面应尽量保持原有设计风貌。

  三、优化内保温材料及做法。

  专家有关建议如下:

  四、专家意见一

  (一)完善各单体平面图纸,外墙门窗洞口应与立面表达一致。

  (二)调整方案效果图外观色彩,尽量保持原有建筑设计风貌,同时细化空调室外机布置,与立面相结合。

  五、专家意见二

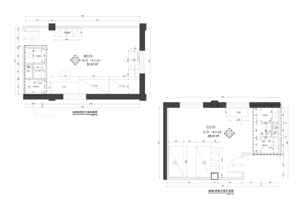
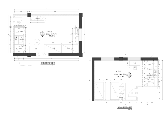
  整体修改后的方案比之前的方案提升较多,建议进一步优化室内设计,尤其宿舍型公寓的洗漱空间设置应方便多人同时使用。

  六、专家意见三

  (一)优化外立面设计,包括颜色、材质等。

  (二)细化非机动车停车,考虑电动自行车充电设施及管理。

  (三)进一步细化房间内部家具部品设计,满足住户需求。

  七、专家意见四

  (一)框架柱加固采用加大截面的做法应注意以下几点:

  1.建议优化纵向受力纵筋的直径(宜加大)、间距(宜加大)、数量(可减少)以利于施工。

  2.进一步优化箍筋、拉筋的设计,建议增加柱身段的箍筋直径(如d=12mm),可适当增加间距;取消角部45°拉钩。

  3.柱中部纵筋可按架立筋采用,可降低钢筋锚固等的措施要求,应与箍筋绑扎牢靠。

  (二)应进一步优化、补充完善2#楼结构构件与内外墙的连接及与外墙内保温做法的协调等内容。

  八、专家意见五

  (一)外墙内保温的材料选择及做法优化,要考虑装配式内墙板的安装与内保温的关系;内保温在地面、顶面要做防热桥处理。

  (二)整体浴注意底盘与浴室门的防水处理。

  (三)SPC地板施工时注意板材的收缩变形。

  (四)4人间尽量设置双盆,实在无法设置,也可在马桶间设小手盆(有这类产品)。

【大 小】 打印】 【关闭